ul. Zioły - Budynek A

Sprzedane

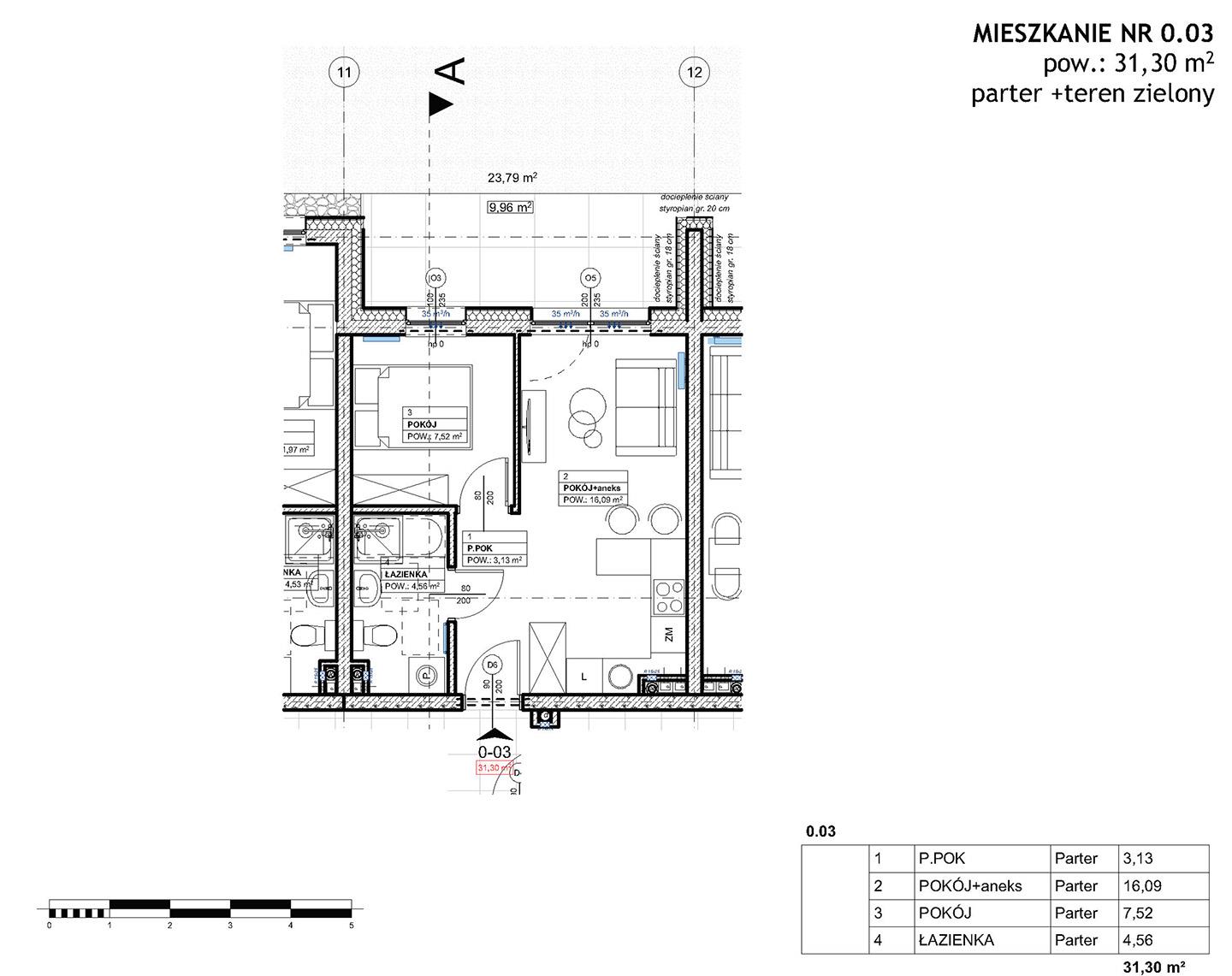
Mieszkanie 0.03

Kondygnacja
Parter
Liczba pokoi
2
Powierzchnia
31.30 m²
Przynależna komórka lokatorska
K9
Powierzchnia komórki lokatorskiej
2,13 m²
Cena komórki lokatorskiej
5275 zł
Cena mieszkania
281 700 zł
Cena mieszkania / m2
9 000 zł/m²
Suma
286 975 zł
Inne świadczenia pieniężne, które Nabywca będzie zobowiązany spełnić na rzecz Dewelopera:
- koszty utrzymania nieruchomości wspólnej oraz lokalu, począwszy od dnia odbioru Lokalu przez Nabywcę, według zasad określonych w umowie deweloperskiej,
- opłata za zmiany lokatorskie – według indywidualnego zamówienia dokonanego przez Nabywcę do nabywanego Lokalu.

Możliwość dokupienie miejsca parkingowego lub hali garażowej za dodatkową opłatą.