ul. Zioły - Budynek A

Sprzedane

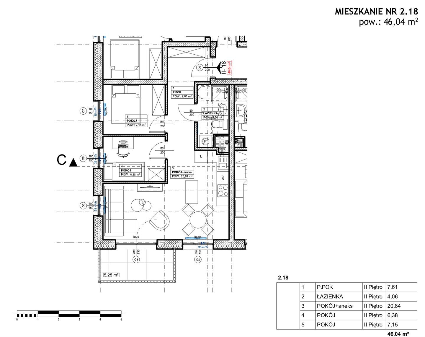
Mieszkanie 2.18

Kondygnacja
Piętro 2
Liczba pokoi
3
Powierzchnia
46.04 m²
Przynależna komórka lokatorska
K21
Powierzchnia komórki lokatorskiej
1,70 m²
Cena komórki lokatorskiej
4150 zł
Cena mieszkania
405 152 zł
Cena mieszkania / m2
8 800 zł/m²
Suma
409 302 zł
Inne świadczenia pieniężne, które Nabywca będzie zobowiązany spełnić na rzecz Dewelopera:
- koszty utrzymania nieruchomości wspólnej oraz lokalu, począwszy od dnia odbioru Lokalu przez Nabywcę, według zasad określonych w umowie deweloperskiej,
- opłata za zmiany lokatorskie – według indywidualnego zamówienia dokonanego przez Nabywcę do nabywanego Lokalu.

Możliwość dokupienie miejsca parkingowego lub hali garażowej za dodatkową opłatą.