ul. Zioły - Budynek A

Wolne

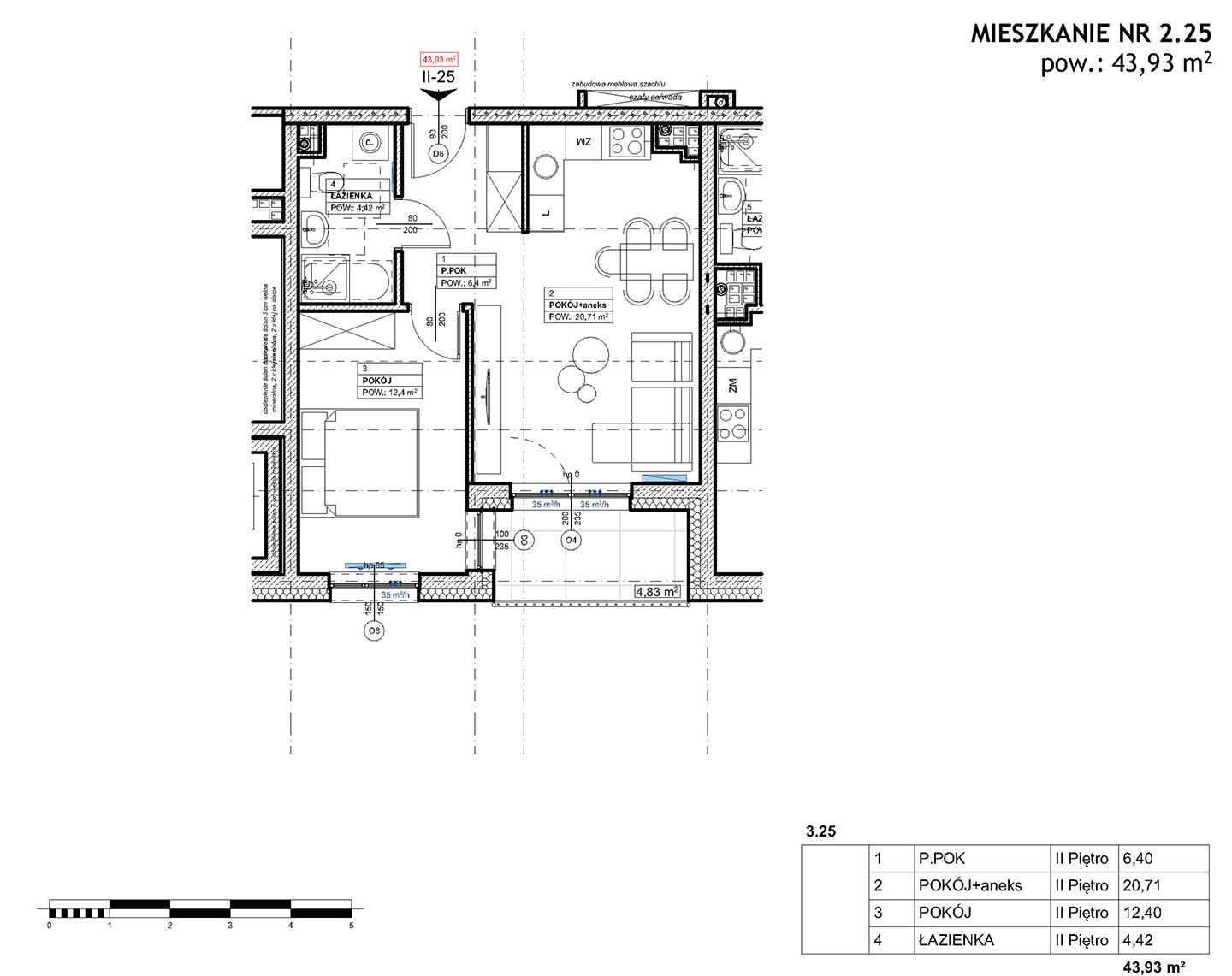
Mieszkanie 2.25

Kondygnacja
Piętro 2
Liczba pokoi
2
Powierzchnia
43.93 m²
Przynależna komórka lokatorska
K13
Powierzchnia komórki lokatorskiej
2,39 m²
Cena komórki lokatorskiej
5925 zł
Cena mieszkania
364 619 zł
Cena mieszkania / m2
8 300 zł/m²
Suma
370 544 zł
Inne świadczenia pieniężne, które Nabywca będzie zobowiązany spełnić na rzecz Dewelopera:
- koszty utrzymania nieruchomości wspólnej oraz lokalu, począwszy od dnia odbioru Lokalu przez Nabywcę, według zasad określonych w umowie deweloperskiej,
- opłata za zmiany lokatorskie – według indywidualnego zamówienia dokonanego przez Nabywcę do nabywanego Lokalu.

Możliwość dokupienie miejsca parkingowego lub hali garażowej za dodatkową opłatą.